🏡 Каркасный дом 8х10м с высокими потолками построили в КП Заповедный по Ирбитскому.
☝️Наши заказчики более года назад заключили договор с другой компанией на строительство дома по семейной ипотеке. За всё это время были закручены только винтовые сваи и никаких других работ выполнено не было. В итоге заказчиками был расторгнут договор с той компанией и заключён с нашей. Мы сделали новый индивидуальный проект, проверили качество фундамента и увеличили длину свай на 0,5м, а затем за 3 месяца построили дом.
👇
📏Площадь застройки S = 82,7 м²
📏Полезная площадь S = 76 м²
📏Высота потолков 2,7- 4,2м
📏Высота дома 5,4 м
👇
📐Гостиная S = 18,5 м²
📐Кухня S = 8 м²
📐Спальня №1 S = 12,9 м²
📐Спальня №2 S = 16,9 м²
📐Санузел S = 6 м²
📐Тех.помещение S = 3 м²
📐Коридор S = 4 м²
📐Тамбур S = 4 м²
👇
Технические характеристики:⠀⠀⠀⠀⠀⠀
Фундамент: Винтовые сваи 73мм (увеличенные с 2,5м до 3 м)
🏡 Каркасный дом 7х11м со вторым светом и антресольным этажом построили в с.Луговое по Ирбитскому тракту. 👇 📏Площадь застройки S = 74 м² 📏Полезная площадь S = 88 м² 📏Высота потолков 2,8- 4,8м 📏Высота дома 6 м 👇 📐Прихожая S = 2,5 м² 📐Кухня-гостиная S = 25,7 м² 📐Спальня №1 S = 12,9 м² 📐Спальня №2 S = 11,5 м² 📐Санузел S = 4 м² 📐Коридор S = 6 м² 📐Котельная S = 3,3 м² 📐Терраса S = 6,2 м² 👇 Технические характеристики:⠀⠀⠀⠀⠀⠀
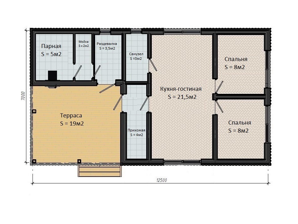
Дом-баню 7х12,5м с высокими потолками и террасой построили в с.Мальцево, Свердловской области. Наши заказчики год назад заключили договор подряда с другой компанией на строительство модульного дома по семейной ипотеке. За год были закручены только винтовые сваи и никаких других работ не производилось. Заказчики решили больше не ждать, расторгли договор с той компанией и заключили договор с нами. Компания 100 Домов сделала новый индивидуальный проект, проверила и усилила фундамент, а затем за полтора месяца построила дом.
Площадь застройки S = 87,5 м² Полезная площадь S = 74 м² Высота потолков 2,8- 4,5м Высота дома 5,6 м
Прихожая S = 4 м² Кухня-гостиная S = 21,5 м² Спальня S = №1 8 м² Спальня S = №2 8 м² Санузел S = 3 м² Раздевалка S = 3,5 м² Мойка S = 2 м² Парная S = 5 м² Терраса S = 19 м²
Технические характеристики:⠀⠀⠀⠀⠀⠀ Фундамент: Винтовые сваи 73мм длина 3м Конструктив: сухой строганный пиломатериал (196х46/146х46/96х46).⠀⠀⠀⠀ Ветрозащита и гидроизоляция: Изоспан АМ.⠀⠀ Пароизоляция дома: Плёнка ПВД 200 микрон (проклеена скотчем Delta multi band). В бане отражающая пароизоляция для саун и бань ИЗОСПАН FB.⠀⠀⠀ Кровля: Профнастил С20 цвет 7024 серый графит Пол в доме:Фанера 18мм ⠀ Пол террасы: доска сухая строганая 146х46мм⠀⠀ Окна ПВХ: Трёхкамерный профиль, тройной стеклопакет с ламинацией графит Входная дверь в дом и баню: ПВХ, Пятикамерный профиль, тройной стеклопакет с ламинацией графит Утепление: Эковер лайт 35, стены 200мм, пол/потолок/крыша 200мм Фасад комбинированный: вертикально профлист С20 покрытие бархат цвет 7024 цвет графит. Вставки над окнами, стены на террасе - фибросайдинг Дековер цвет Snow. Откосы и отливы металлические цвет 7024 покрытие бархат.⠀⠀⠀⠀ Водосточная система: ПВХ Grand Line, цвет серый Свесы кровли, потолок на террасе: Софит ПВХ тройной с центральной перфорацией цвет белый. Снегозадержатели: плоскоовальные по обоим скатам крыши
Технические характеристики: Фундамент: Винтовые сваи 89мм длина 3,5м Конструктив: сухой строганный пиломатериал (196х46/146х46/96х46). Ветрозащита и гидроизоляция: Изоспан АМ. Пароизоляция: Плёнка ПВД 200 микрон (проклеена скотчем Delta multi band) Кровля: Профнастил С-20 цвет 7024 серый графит, покрытие полиэстер Пол террасы: доска сухая строганая 146х46мм. Настил пола в доме: Фанера 18мм. Снизу подшит сеткой от грызунов 6*6мм⠀ Окна: Трёхкамерный профиль, тройной стеклопакет с ламинацией графит Входная дверь: Термодверь входная Бункер Термо Лайт (с терморазрывом) Утепление: Эковер лайт 35, стены, пол, потолок 200мм. Вентиляция: в каждой комнате установлен приточный клапан КИВ-125. На кухне и в санузле установлен выход вентиляции через кровлю Viotto. Фасад: Фасадные панели Ю-пласт Стоун Хаус S-Lock Клинкер Дымчатый, по цоколю цвет графитовый. Откосы и отливы на окна металлические цвет 7024 покрытие полиэстер. Водосточная система: ПВХ Grand Line, цвет серый Свесы кровли: Софит ПВХ тройной с центральной перфорацией цвет графит
Консультации, детали, стоимость:⠀⠀ Телефон/Telegram : +7-982-782-97-40 Екатерина (ответственный менеджер по данному объекту)
Каркасный дом 9х10м с тремя спальнями построили по индивидуальному проекту в СНТ Яровское (Тобольский тракт). Отделку фасада дома сделали металлосайдингом под брус ( цвета 7024 и 7004). На кровлю постелили металлочерепицу цвет серый графит 7024. Планировка: гостиная S = 27м², кухня S = 7м², спальня №1 S = 7м², спальня №2 S = 10,5м², спальня № 3 S = 8,5м², санузел №1 S=4,6м², санузел №2 S = 1,4м², котельная S = 3,5м². Дом построен по семейной ипотеке с использованием эскроу-счёта.
Утеплённую каркасную беседку 4х8.5м с террасой построили в с. Перевалово по Московскому тракту. Тёплая часть беседки 4х5.5м. Терраса под общей кровлей 4х3м На кровле металлочерепица с покрытием Valori цвет Grey. Установлены снегозадержатели и водостоки с обеих сторон кровли. Внешняя отделка беседки прямым планкеном из лиственницы 20х140мм вертикально с зазором 3мм. Подшивка свесов кровли и потолка на террасе так же планкеном. Окна и входная дверь с двусторонней ламинацией серого цвета, стеклопакеты с инфракрасным энергосберегающим напылением.
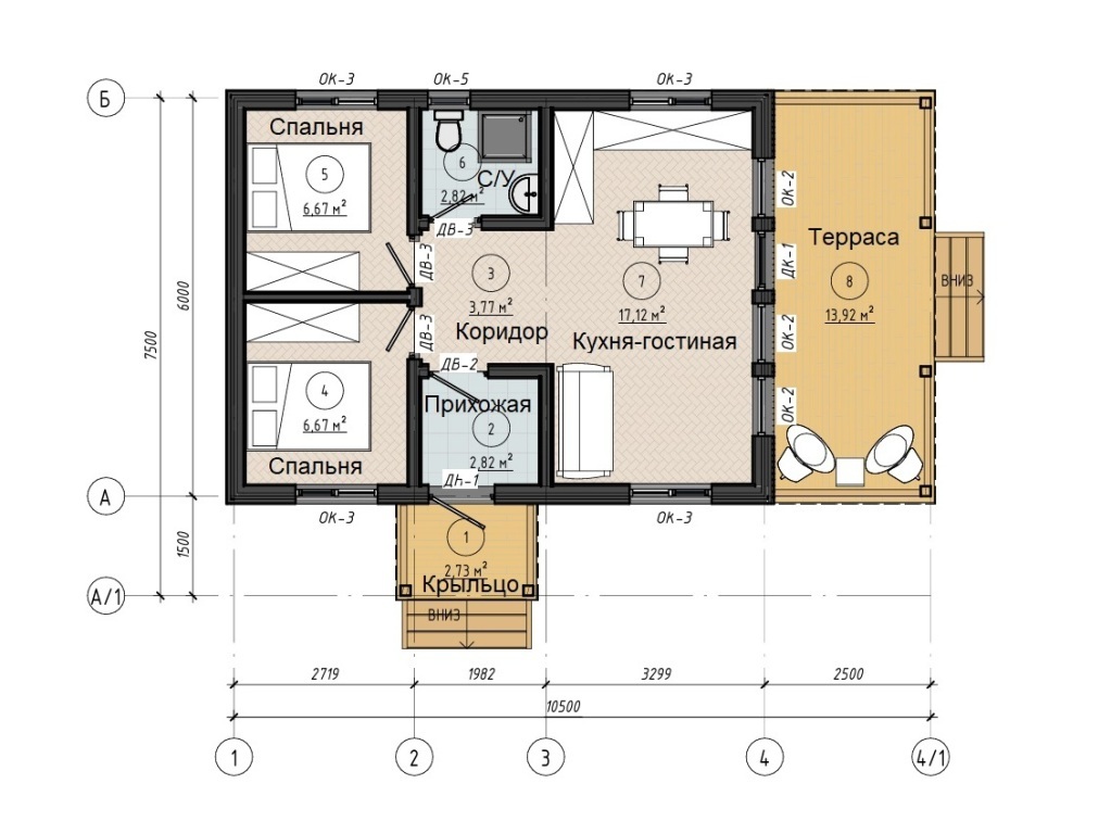
Каркасный дом 6х10,5м со вторым светом в кухне-гостиной и террасой под общей кровлей с домом построили по индивидуальному проекту в КП Sun Village (д. Якуши) по Старотобольскому тракту. Отделку фасада дома сделали комбинированную. Три стороны дома обшили фиброцементным сайдингом дековер цвет Gray по цоколю и Snow основной фасад. Лицевой фасад обшили планкеном 20х90мм вертикально. На кровлю постелили металлочерепицу цвет серый графит 7024. Установили ПВХ водостоки и плоскоовальные снегозадержатели. Карнизы и потолок на террасе и крыльце подшили ПВХ софитом серого цвета. Установили окна с ламинацией под дерево серого цвета и входную дверь с терморазрывом. Планировка: совмещённая кухня-гостиная S = 17м², терраса S = 13,9м², спальня №1 S = 6,7м², спальня №2 S = 6,7м², коридор S = 3,7м², санузел S=2,8м², прихожая S = 2,8м², крыльцо S = 2,7м² Видеообзор по ссылкам: Ютубhttps://youtu.be/p_s?s VK видео https://vkvideo.ru/video-185 Яндекс дзен https://dzen.ru/video/watch/673 Рутубhttps://rutube.ru/video/78
Каркасный дом 6х11м со вторым светом и высокими потолками построили в д. Парёнкина по Старотобольскому тракту. Отделку фасада дома сделали комбинированную. Основной фасад обшили фиброцементным сайдингом дековер цвет Snow. Цоколь обшили металлосайдингом L-брус цвет 8017 покрытие Viking. На кровлю постелили Кликфальц цвет 8017 покрытие Viking. Установили ПВХ водостоки и плоскоовальные снегозадержатели. Карнизы и потолок на крыльце подшили ПВХ софитом коричневого цвета. Установили окна с ламинацией под дерево коричневого цвета и входную дверь с терморазрывом. Планировка: совмещённая кухня-гостиная S = 18,9м², спальня №1 S = 9,3м², спальня №2 S = 9,3м², холл S = 7,3м² санузел S=3,8м², прихожая S = 3,6м², тех.помещение S = 3,1м², крыльцо S = 4,6м²
Каркасный дом 8х11м со вторым светом, высокими потолками и террасой построили в СНТ Бирюсинка по Велижанскому тракту. Отделку фасада дома сделали комбинированную. Основной фасад обшили фиброцементным сайдингом дековер цвет silver. Цоколь обшили металлосайдингом L-брус с брашировкой цвет 7024 покрытие Viking. На кровлю постелили Кликфальц цвет 7024 покрытие Viking. Установили ПВХ водостоки Docke Premium цвет серый и плоскоовальные снегозадержатели. Карнизы, потолок на террасе и крыльце подшили ПВХ софитом белого цвета. Установили окна с ламинацией серого цвета и входную дверь с терморазрывом. Планировка: совмещённая кухня-гостиная S = 30м2, спальня 1 S = 12м2, спальня 2 S = 10,7м2, санузел S=9м2, тамбур S = 4,1м2, тех.помещение S = 3,4м2, терраса под общей кровлей S = 11,7м2. Видеообзор по ссылкам: Ютубhttps://yhttps://youtu.be/p_s?s VK видео https://vkvideo.ru/video-185 Яндекс дзен https://dzen.ru/video/watch/673 Рутуб https://rutube.ru/video
Каркасный дом 6х7.5м с террасой построили в КП 7 озёр по Салаирскому тракту. Отделку фасада дома сделали виниловым сайдингом Корабельная доска Grand Line Color Plus "голубой. Цоколь обшили Фасадными панелями Grand Line Состаренный кирпич "Графит". На кровлю постелили профнастил марки С-44 цвет серый графит 7024. Установили ПВХ водостоки и плоскоовальные снегозадержатели. Карнизы и потолок на террасе подшили ПВХ софитом белого цвета. Внутреннюю отделку сделали фанерой 10мм. Планировка: кухня-гостиная S= 13,7м2, спальня 1 S= 6,6м2, спальня 2 S= 7,7м2, санузел S=2,8м2, коридор S=6,1м2, терраса под общей кровлей S=12м2. Этот дом построили по семейной ипотеке (ставка 6% годовых) с использованием эскроу-счёта. Видеообзор по ссылкам: Ютубhttps://youtu.be/8_6JKBKxp_s?s VK видео https://vkvideo.ru/video-185 Яндекс дзен https://dzen.ru/video/watch/673 Рутуб https://rutube.ru/video
Каркасный дом 6х8м с террасой построили в СНТ Большое Царёво-2 по Велижанскому тракту. Внешнюю отделку дома сделали виниловым сайдингом Альта Профиль цвет салатовый. Откосы на окна и углы металллические цвет 9003 (белый). Цоколь обшили профнастилом С20 цвет шоколадный. Установили окна и входную металлическую дверь с терморазрывом. На кровлю постелили металлочерепицу монтеррей цвет 8017 шоколадный и установили пластиковые водостоки. Карнизы и потолок на террасе подшили ПВХ софитом белого цвета. Внутреннюю отделку сделали имитацией бруса 16х135мм и влагостойким гипсокартоном 12,5мм. Сделали разводку электрики в металлорукаве в ПВХ оболочке. Установили огнестойкие герметичные подрозетники фирмы Kopos Планировка: кухня-гостиная S= 15,2м2. спальня S= 8,6м2, санузел S=2,6м2, холл S=3м2, терраса под общей кровлей S=11,3м2.
В п. Новокаменский по Ирбитскому тракту построили каркасный дом-баню 8х8,5м с террасой. Внешнюю отделку дома сделали комбинированную. Основной материал - профнастил С20 цвет 7024 серый графит покрытие бархат. Фасадную часть дома обшили вертикально доской камерной сушки 20х90мм. Установили окна с ламинацией серого цвета и входную металлическую дверь с терморазрывом. На кровлю постелили так же профнастил С20 цвет 7024 серый графит покрытие бархат. Установили ПВХ водостоки, выходы вентиляции через кровлю. Карнизы и потолок на террасе подшили ПВХ софитом серого цвета. Планировка: кухня-гостиная S=22м2, спальня S=6,5м2, баня S=6,2м2, терраса S=18,6м2, санузел №1 S=1,7м2, санузел №2 S=1,5м2, крыльцо S=4,3м2 Этот дом мы построили по семейной ипотеке по ставке 5,9% годовых с использованием эскроу счёта.
В Нижней Тавде построили каркасный дом 8х10м с тремя спальнями и кухней-гостиной. Внешнюю отделку дома сделали металлосайдингом брус цвет золотой орех 3Д. Цоколь обшили профнастилом С8 цвет камень. Установили окна с ламинация серого цвета и входную металлическую дверь с терморазрывом. На кровлю постелили металлочеремцу монтеррей цвет 7024 серый графит. Установили снегозадержатели с двух сторон, ПВХ водостоки. Карнизы и потолок на крыльце подшили ПВХ софитом серого цвета. Внутреннюю отделку сделали гипсокартоном 12.5мм. Планировка: кухня-гостиная S= 20,5м2. спальня 1 S= 10,3м2, спальня 2 S= 8,3м2, спальня 3 S= 13,5м2, санузел S=3м2, котельная S=3м2, крыльцо под общей кровлей S=3,8м2. Этот дом построили по семейной ипотеке с использованием эскроу счёта.
В п.Молодёжный по Московскому тракту построили каркасный дом в стиле А-фрейм с аттиковыми стенами и двумя террасами. Размер дома 6х11м. Размер тёплого контура 6х7м. Дом имеет: две террасы S = 17м2 и S = 5м2, кухню-гостиную S = 28м2 со вторым светом и выходом на обе террасы, антресоль S = 15м2, санузел S = 5м2, тех.помещение S = 2м2. Внешнюю отделку дома сделали вертикально металлосайдингом L-брус в покрытии викинг чёрного цвета. На кровлю постелили кликфальц так же в покрытии викинг чёрного цвета. Окна и обе входные двери пластиковые с тройным мультифунциональным остеклением, профиль пятикамерный с двусторонней ламинацией чёрного цвета. Этот первый дом, который мы построили с использованием эскроу-счёта.
В СНТ Здоровье-3 по Велижанскому тракту построили каркасный дом 9 х 12м со вторым светом, антресолью в детской комнате и угловой террасой. Дом имеет: угловую террасу S = 35м2 под общей кровлей с домом, кухню-гостиную S = 29м2 со вторым светом и выходом на террасу, две спальни площадью S = 9м2 и S = 11м2 (во второй спальне сделали антресольный этаж - дополнительное спальное место), два санузла S = 4м2 и S = 2м2, тех.помещение S = 2м2 и тёплый тамбур S = 3,7м2. Внешнюю отделку дома сделали комбинированную. Цоколь обшили металлосайдингом Л-Брус цвет серый графит в покрытии викинт. Основной фасад дома обшили фиброцементным сайдингом Дековер цвет Snow, вставки под окнами и лицевая часть дома цвет Mokko. Свесы кровли и потолок на террасе подшили виниловым сайдингом Docke PREMIUM Сайдинг Брус D6S цвет Сливки. На кровле металлочерепица супермонтеррей RAL 7024 (графит) покрытие Викинг, снегозадержатели и водостоки грандлайн серого цвета. Окна и обе входные двери пластиковые с тройным остекление, профиль пятикамерный с двусторонней ламинацией цвет серый антрацит, фальц крашеный в серый цвет. Внутреннюю отделку заказчики сделали самостоятельно вагонкой сорта Экстра толщиной 14мм с окрашиванием на заводе
Построили каркасный дом 8 х 13,5м в СНТ Моторостроитель по Салаирскому тракту. Дом имеет: террасу S = 19м2 под общей кровлей с домом, кухню-гостиную S = 26м2 со вторым светом и выходом на террасу, три спальни площадью 7м2, 10м2 и 11,5м2, санузел S = 3,7м2, тех.помещение S = 3м2, кладовую S = 2,6м2 и антресольный этаж S = 44м2. Фасад дома обшили фасадными панелями #грандлайн крупный камень. На кровле металлочерепица, снегозадержатели и водостоки. В кухне-гостиной подготовлен фундамент для установки кирпичной печи.
Построили каркасный дом 12 х 14м по Тобольскому тракту. Дом имеет: террасу S = 45м2 под общей кровлей с домом, кухню-гостиную S = 31.5м2 со вторым светом и выходом на террасу, мастер спальню S = 9,8м2 со своим санузлом S=4м2 и гардеробом S = 4,6м2, вторую спальню S = 13,5м2, рабочий кабинет S = 7м2, ещё один санузел Закончили строительство каркасного дома 12 х 14м по Тобольскому тракту. Дом имеет: террасу S = 45м2 под общей кровлей с домом, кухню-гостиную S = 31.5м2 со вторым светом и выходом на террасу, антресольный этаж S = 30м2, этаж мастер спальню S = 9,8м2 со своим санузлом S = 4м2 и гардеробом S = 4,6м2, вторую спальню S = 13,5м2, рабочий кабинет S = 7м2, второй санузел S = 10м2,техническое помещение S = 7м2, а так же есть холодный чердак, который можно утеплить и сделать полноценную комнату. Фасад дома обшили ОСБ плитой. В дальнейшем заказчики планируют отделать фасад деревянным планкеном. На кровлю постелили кликфальц черного цвета с покрытием викинг. Все пластиковые окна имеют двустороннюю ламинацию черного цвета.
В СНТ Автомобилист по Салаирскому тракту построили каркасный дом размером 6х10м. В доме есть кухня-гостиная с высокими потолками S =17 м2, две спальни S = 7м2 каждая, терраса с выходом из кухни-гостиной S = 11,4м2, антресольный этаж S = 26м2, санузел 3м2. Фасад дома обшили виниловым сайдингом корабельный брус, а цоколь фасадными панелями под камень. На кровле металлочерепица цвет серый графит. На крышу установили снегозадержатели, выход вентиляции и водосточную систему. Свесы кровли, потолок на террасе и крыльце подшили виниловым софитом под дерево.Внутри стены обшили имитацией бруса.
Каркасный дом в стиле Барнхаус размером 8х11м построили в СНТ Геолог-2 по Велижанскому тракту. Дом имеет два входа, главный вход с крыльца и второй вход с террасы. В доме есть кухня-гостиная с высокими потолками и вторым светом S =26,5 м2, комната под кровлей - антресоль S = 19 м2, две спальни S =7,2м2 каждая, санузел S =3м2, техническое помещение S = 1м2, терраса S = 12,8м2 и крыльцо S = 4,4м2. Фасад комбинированный: профнастил марки С20 в цвете серый графит, смонтированный вертикально и металлосайдинг брус под дерево цвет Дуб 3Д горизонтально. На кровле установили снегозадержатели, выходы вентиляции и водосточную систему. Потолок на террасе и крыльце подшили виниловым софитом серый графит. Окна с ламинацией в цвете антрацит.
В СНТ Лесник-2 по Московскому тракту построили каркасный дом размером 8,5х13м. В доме есть кухня-гостиная S =40 м2, три спальни S = 11м2, 12,6 и 12,6м2 (в одной спальне есть гардеробная 4м2), терраса с выходом из кухни-гостиной S = 11,8м2, техническое помещение S=3м2, два санузла 3м2 и 4.4м2. Фасад дома комбинированный: основной материал профнастил С20 цвет серый графит покрытие Viking, смонтированный вертикально и вставки из металлосайдинга брус цвет Дуб 3Д горизонтально. На кровлю постелили металлочерепицу цвет серый графит. Установили снегозадержатели, выходы вентиляции и водосточную систему. Свесы кровли, потолок на террасе и крыльце подшили металлосайдингом софит под дерево. Окна с ламинацией в цвете графит. Дом построили из строганной доски камерной сушки с применением LVL бруса для формирования большого пространства и высоких потолков в кухне-гостиной.
Построили каркасный дома в КП Берёза Парк по Салаирскому тракту. Размер пятна застройки 7х8м. Из которых 4х8м - тёплый контур, 3х8м открытая терраса. Дом имеет кухню-гостиную площадью 12,3м2 с панорамным остеклением, комнату 7.7м2 и санузел 3,1м2. Внешняя отделка дома фибросайдингом Дековер цвет сильвер, цоколь закрыли металлосайдингом L- Брус c брашировкой в покрытии викинг цвет серый графит. На кровлю сделали гибкую черепицу, установили ПВХ водостоки.
Каркасный дом в стиле Барнхаус размером 6х12м построили в КП Вишня по Старотобольскому тракту. Дом имеет два входа, один с улицы, а второй с террасы. В доме есть кухня-гостиная со высокими потолками, антресоль, две спальни, санузел, техническое помещение, терраса и крыльцо. Внешняя отделка комбинированная: профнастил марки С20 в цвете серый графит, смонтированный вертикально и металлосайдинг брус под дерево цвет Дуб 3Д. На кровле установили снегозадержатели, выходы вентиляции и водосточную систему. Потолок на террасе и крыльце подшили виниловым софитом серый графит. Окна с ламинацией под фактуру дерева в цвете серый графит.
Построили двухэтажный каркасный дом размером 6х8м с открытой террасой в СНТ Восход по Червишевскому тракту. Дом имеет два входа, с улицы и с участка. Террасу дома пристроили к террасе бани. Фасад сделали комбинированный: цоколь обшили металлосайдингом под брус в цвете 7024 серый графит, а основной фасад сделали фибросайдингом дековер цвет Silver. Кровля - металлочерепица монтеррей цвет 7024 серый графит покрытие викинг. Установили снегозадержатели, водосточную систему, выходы вентиляции через кровлю, на карнизы смонтировали новогоднюю гирлянду. Планировка: На первом этаже есть очень просторная кухня-гостиная площадью 27м2, в которой заказчик устанавливает дровяную печь, тёплый тамбур у входной двери, санузел, пластиковая дверь с выходом на открытую террасу. На втором этаже три спальни площадью 9м2,10м2 и 10м2, коридор и санузел.
Каркасный дом 8х8м построили в с. Борки по Тобольскому тракту. За основу взяли типовой проект Вишера и внесли корректировки по желанию заказчика, а именно над двумя спальнями сделали зону лофта (тёплый чердак). Дом имеет: -Кухню-гостиную со вторым светом S=17м2 -Коридор S=8м2 -Две спальни, S=7м2 каждая -Санузел S=3м2 -Террасу S=12,5м2 -Весь пиломатериал строганый и камерной сушки по ГОСТу 8486-86 -Фундамент: Винтовые сваи с засыпкой ЦПС с предварительным исследованием грунта. -Сетка от грызунов -Ветрозащита супердиффузионная мембрана Изоспан АМ -Лаги, стропила, каркас - доска 196х46мм, 146х46мм -Кровля: Профнастил МП 20 цвет серый графит, водосточная система, вент выходы Вилпе. -Фасад: виниловый сайдинг под дерево Артфасад цвет Ясень, вставки - виниловый сайдинг Тимберблок планкен цвет угольный -Цоколь профлист МП 20 цвет серый графит с металлическим отливом -Утепление: Эковер Лайт с проклейкой скотчем Дельта, -Пароизоляция плёнка ПВД 200 микрон -Окна с ламинацией серый графит -Входная дверь металлическая с терморазрывом
В КП Бавария по Тобольскому тракту построили два каркасных дома для двух сестёр, Нелли и Тамары. Этот дом мы построили для Нелли. Размер дома 7,5х11,5м. В доме есть: кухня-гостиная 16м2, две спальни: 15,7м2 и 14,5м2, каждая со своей гардеробной, 2 санузла 3м2 и 4м2, тёплый тамбур 3,9м2, терраса 11,2м2, крыльцо 4,5м2.
В КП Бавария по Тобольскому тракту построили два каркасных дома для двух сестёр, Нелли и Тамары. В этом видео обзор дома для Тамары. Площадь дома 135м2. Дом двухэтажный. В доме есть кухня-гостиная 17,5м2, три спальни: 15м2, 17,8м2 и 17,9м2, две из которых со своими гардеробными, санузел, котельная, два холла, тёплый тамбур, терраса. Все комнаты на втором этаже имеют второй свет и высокие потолки (утепление по скатам кровли).
Каркасный дом 9х13м для постоянного проживания построили в СНТ Здоровье-3 по Велижанскому тракту. В доме есть просторная кухня-гостиная S=54м2 с высотой потолков 4м, спальня с гардеробной, детская с лофтом и гардеробной, санузел, ванная и терраса. Внешняя отделка выполнена из фиброцементного сайдинга Дековер. Цоколь обшит металлосайдингом L-брус с покрытием Викинг. На кровле металлочерепица со снегозадержателями и водосточной системой.
Каркасный дом 7,5х12.5м для постоянного проживания построили в КП Заповедный по Ирбитскому тракту. В доме есть кухня-гостиная со вторым светом 28,5м2, три спальни 11м2, 12м2 и 13м2, два санузла 1.8м2 и 4м2, котельная 2,2м2. Внешняя обшивка OSB плитой под покраску.
Каркасный дом 7х10м построили в д.Паренкина по Старотобольскому тракту. В доме есть кухня-гостиная 20,6м2, 2 спальни 12м2 и 14м2, санузел 5,2м2 и котельная 3,6м2. Внешняя обшивка ОСП плитой под дальнейшую отделку фасадной плиткой Hauberk
КП Московские усадьбы по Московскому тракту построили одноэтажный каркасный дом размером 10х10 м на ленточном фундаменте заказчиков. Для уменьшения батутности пола в цокольном перекрытии применили двутавровые деревянные балки. Комплектация тёплый контур, дом полностью готов снаружи и утеплён. ПЛАНИРОВКА: Кухня-гостиная S = 16 м2, санузел S = 5 м2, холл S = 3,3 м3, тамбур S = 2 м2, спальня №1 S = 14,3 м2, спальня № 2 S = 14,3 м2 и спальня №3 S = 11,8 м2 ФУНДАМЕНТ: Ленточный, железобетонный. В качестве лаг пола в цокольном перекрытии применили двутавровые деревянные балки сечением 290мм и длиной почти 5м. Снизу пол зашили металлической оцинкованной сеткой от грызунов. Диаметр проволоки 0.6мм, ячея 6мм. СИЛОВОЙ КАРКАС : Каркас стен, пола, потолка и крыши сделали из строганного пиломатериала камерной сушки. УТЕПЛЕНИЕ : Стены утеплили толщиной 200мм, пол и кровлю 250мм. Утеплитель применили базальтовый эковер Лайт, плотность 35кг/м3. Внутри утеплитель закрыли пароизоляционной плёнкой 200 микрон с проклейкой скотчем Delta multi band, кровлю, фасад и цокольное перекрытие снизу закрыли мембраной изоспан АМ. ФАСАД : Внешнюю отделку сделали металлосайдингом под брус, цвет 7004. Цоколь обшили фасадными панелями Грандлайн крупный камень цвет графит Карнизы подшили виниловым софитом с частичной перфорацией цвет графит КРОВЛЯ : На кровлю постелили профнастил МП 20 цвет по Ral 7024 серый графит. ОКНА: Пластиковые с поворотно- откидными створками, трёхкамерный профиль, двойной стеклопакет, с москитными сетками ВХОДНАЯ ДВЕРЬ: металлическая с утеплителем и терморазрывом ВТОРАЯ ДВЕРЬ: пластиковая с двойным стеклопакетом
Двухэтажный каркасный дом 6*6 м с террасой 6*2,5 м построили в СНТ Самоцветы по Велижанскому тракту. Комплектация тёплый контур, дом полностью готов снаружи и утеплён ПЛАНИРОВКА: 1-й этаж: кухня-гостиная S = 16 м2, санузел S = 5 м2, холл S = 3,3 м3, тамбур S = 2 м2, лестница S = 5м2, терраса S = 14,4 м2 2-й этаж мансардный (утепление по скатам кровли): лестница S = 5 м3 , одна спальня S = 16 м2, вторая спальня и S = 10 м2 ФУНДАМЕНТ: Свайно-винтовой фундамент. По результату пробного забуривания подобрали сваи диаметром 89мм длиной 3м. Снизу пол зашили металлической оцинкованной сеткой от грызунов. Диаметр проволоки 0.6мм, ячея 6мм. СИЛОВОЙ КАРКАС : Каркас стен, пола, потолка и крыши сделали из строганного пиломатериала камерной сушки. УТЕПЛЕНИЕ : Стены утеплили толщиной 150мм, пол и кровлю 200мм. Утеплитель применили базальтовый эковер Лайт, плотность 35кг/м3. Внутри утеплитель закрыли пароизоляционной плёнкой 200 микрон с проклейкой скотчем Delta multi band, кровлю, фасад и цокольное перекрытие снизу закрыли мембраной изоспан АМ. ФАСАД : Внешнюю отделку сделали металлосайдингом под брус, цвет Дуб 3д. Цоколь обшиби фасадными панелями Грандлайн колотый камень цвет коричневый Карнизы подшили виниловым софитом с частичной перфорацией цвет белый. КРОВЛЯ : На кровлю постелили металлочерепицу монтеррей цвет по Ral 8017 шоколадно-коричневый. На металлочерепицу установили плоскоовальные снегозадержатели с обеих сторон крыши. Вдоль всей кровли установили пластиковые водостоки ОКНА: Пластиковые с поворотно- откидными створками, двухкамерными стеклопакетами и ВХОДНАЯ ДВЕРЬ: металлическая с утеплителем и терморазрывом
Каркасный дом со вторым светом и террасой размером 9.5х15м построили в с. Гусево по Московскому тракту Характеристики: Фундамент - ЖБ плита 300мм с выборкой плодородного грунта и отсыпкой песком. Фасад комбинированный из сухой строганой доски 20х90мм окрашенной пропиткой Здоровый дом цвет орегон и фибросайдинга Decover двух цветов: по фундаменту цвет Gray (серый), основной цвет фасада Snow (белый). Кровля - профнастил МП20 цвет серый графит Ral 7024 с матовым покрытием Viking Карнизы и подшивка потолка навеса и террасы - металлосайдинг софит с перфорацией цвет 7024 серый графит, покрытие Viking. Водостоки - Дёке Lux ПВХ цвет графит. Силовой каркас дома и столбы на террасе – строганная доска камерной сушки. Утепление – Эковер лайт толщина 200мм по стенам и 250мм по потолку и кровле в кухне-гостиной. Окна Rehau пятикамерный профиль, тройной стеклопакет. Ламинация под дерево серого цвета Видеообзор по ссылкам: Ютубhttps://youtu.be/8_6JKBKxp_s?s VK видео https://vkvideo.ru/video Яндекс дзен https://dzen.ru/video
Каркасный Барнхаус 6,5Х13,5М с тёплым чердаком и терРасой
Каркасный дом в стиле Барнхаус построили в КП Кулига-2 по Ирбитскому тракту. Комплектация тёплый контур, дом полностью готов снаружи и утеплён. Планировка: Кухня-гостиная 25,5м2 с панорамными окнами, утеплением по скатам кровли и выходом на террасу. Две спальни по 9.,8м2 Санузел 5,2м2 Котельная 3м2 Тёплый тамбур 3,2м2 Коридор, объединённый с кухней гостиной 9,1м2 Терраса 11,4м2 Тёплый чердак (мини второй этаж) над комнатами 17м2
Характеристики: Размеры дома по фундаменту 6,5м х 13,5м Фундамент - винтовые сваи, длина 3м, диаметр 89мм Фасад - металлосайдинг под дерево со вставками серый графит из профнастила Все окна и дверь на террасу с ламинацией в цвете графит Входная металлическая дверь Кровля - профнастил МП 20 цвет 7024 серый графит, снегозадержатели, водостоки. Силовой каркас – строганная доска камерной сушки. 46х146мм Утепление – Эковер лайт толщина 200мм. Настил пола в доме - фанера 18мм Настил пола на террасе - доска 146х46мм сухая строганная Видеообзор по ссылкам: Ютубhttps://youtu.be/8_6JKBKxp_s?s VK видео https://vkvideo.ru/video Яндекс дзен https://dzen.ru/video
Каркасный дом в КП Дачи Хюгге по Тобольскому тракту размером 7.5х11м Общая площадь застройки 88м2, площадь тёплого контура 42м2. В доме есть открытая терраса, веранда под общей кровлей с домом, кухня-гостиная со вторым светом и большими панорамными окнами, спальня с отдельным выходом на террасу, санузел и котельная. Фундамент - винтовые сваи длиной 3м Внешняя отделка - ОСП плита 12мм, для дальнейшего нанесения декоративной штукатурки. Панорамные пластиковые окна и дверь на террасу Входная металлическая дверь с терморазрывом Кровля - профнастил МП 20 цвет 7024 серый графит, с водостоками и снегозадержателями Силовой каркас – строганная доска камерной сушки. Утепление – Эковер лайт толщина 200мм. Настил пола в доме - фанера 18мм Настил пола на террасе - доска 145х45мм сухая строганная Видеообзор по ссылкам: Ютубhttps://youtu.be/8_6JKBKxp_s?s VK видео https://vkvideo.ru/video-18 Яндекс дзен https://dzen.ru/video
Построили каркасный дом в с.Богандинское (Килки) по Ялуторовскому тракту размером 8х8м. Дом одноэтажный, но крышу мы подготовили под дальнейшее утепление. В будущем заказчики хотят обустроить второй этаж.
Каркасный дом в стиле Барн-Хаус размером 9х15 метров построили в СНТ Автоприбор-2 по Салаирскому тракту. Общая площадь жилых помещений составляет 120м2. Дом имеет удобную и практичную планировку, актуальный сейчас второй свет с большими панорамными окнами в кухне-гостиной, три спальни, тех. помещение и изюминка дома - сауна с выходом на террасу.
Построили каркасный дом с мансардным этажом в СНТ Пчёлка по Салаирскому тракту. Комплектация тёплый контур с внешней отделкой. Размер по фундаменту 6х7м. ПЛАНИРОВКА:: 1-й этаж: кухня-гостиная S=18,3м2, санузел S=3,63м2, тамбур S=2.64м2, тех.помещение S=2,15м2, коридор S=8.47м2, крыльцо 2.93м2 2-й этаж мансардный (утепление по скатам кровли): холл S=7,42м2 , три спальни S=11,21м2 , S=7,51м2, S=6,44м2 ФУНДАМЕНТ: Свайно-винтовой фундамент. По результату пробного забуривания подобрали сваи диаметром 89мм длиной 3м. Снизу пол зашили металлической оцинкованной сеткой от грызунов. Диаметр проволоки 0.6мм, ячея 6мм. СИЛОВОЙ КАРКАС : Каркас стен, пола, потолка и крыши сделали из строганного пиломатериала камерной сушки. УТЕПЛЕНИЕ : Стены утеплили толщиной 150мм, пол и кровлю 200мм. Утеплитель применили базальтовый эковер Лайт, плотность 35кг/м3. Внутри утеплитель закрыли пароизоляцией 200 микрон с проклейкой скотчем Delta multi band, фасад, кровлю и цокольное перекрытие снизу закрыли ветрозащитой изоспан АМ, ФАСАД : Внешнюю отделку сделали металлосайдингом под Бревно, цвет Орех 3д. Цоколь обшили фасадными панелями Docke Сланец цвет Валь-Гардена. Карнизы подшили виниловым софитом с перфорацией цвет серый графит. КРОВЛЯ : На кровлю постелили металлочерепицу монтеррей цвет по Ral 7024 серый графит. Установили ПВХ водостоки грандлайн так же в цвете серый графит ОКНА: Пластиковые с поворотно- откидными створками, двухкамерными стеклопакетами и ламинацией под дерево серого цвета
Построили каркасный дом с мансардным этажом в СНТ Лесная сказка по Велижанскому тракту. Комплектация тёплый контур с внешней отделкой. Размер по фундаменту 6х6м. ПЛАНИРОВКА: 1-й этаж: кухня, гостиная, санузел 2-й этаж мансардный (утепление по скатам кровли): коридор, две спальни ФУНДАМЕНТ: Свайно-винтовой фундамент. По результату пробного забуривания подобрали сваи диаметром 89мм длиной 3м. Снизу пол зашили металлической оцинкованной сеткой от грызунов. Диаметр проволоки 0.6мм, ячея 6мм. СИЛОВОЙ КАРКАС : Каркас стен, пола, потолка и крыши сделали из строганного пиломатериала камерной сушки. УТЕПЛЕНИЕ : Стены утеплили толщиной 150мм, пол и кровлю 200мм. Утеплитель применили базальтовый эковер Лайт, плотность 35кг/м3. Внутри утеплитель закрыли синей пароизоляцией СиЖ-П с проклейкой скотчем Delta multi band, фасад и цокольное перекрытие снизу закрыли ветрозащитой изоспан АМ, На кровле утеплитель сверху закрыли мембраной Изоспан AQ Proff. ФАСАД : Внешнюю отделку сделали металлосайдингом под брус, цвет Дуб 3д. Цоколь обшиби металлосайдингом L-брус цвет 7024 серый графит с покрытием викинг. Карнизы подшили виниловым софитом с частичной перфорацией цвет серый. КРОВЛЯ : На кровлю постелили металлочерепицу ламонтерра цвет по Ral 7024 серый графит, покрытие викинг, толщина 0.45мм. На металлочерепицу установили плоскоовальные снегозадержатели с обеих сторон крыши. ОКНА: Пластиковые с поворотно- откидными створками, двухкамерными стеклопакетами и ламинацией под дерево серого цвета
Каркасный дом со вторым светом и открытой террасой построили в 15 км от Тюмени по Салаирскому тракту. Площадь застройки 162м2. Жилая площадь 118 м2. Терраса S = 22,6 м2 с видом на реку. Гостиная S = 29,5 м2 со вторым светом и большими панорамными окнами с видом на реку. 3 спальни, кухня, 2 санузла.
Построили одноэтажный каркасный дом 9*8м в г. Тюмени (СНТ Торфяник-1) с баней и открытой террасой
Общая площадь помещений дома 62м2. Площадь террасы 20м2 Планировка: кухня-гостиная 23м2 с выходом на террасу, спальня 8.8м2, комната отдыха 8.65м2, санузел 2.6м2, парная 3м2. Тамбур, холл, тех.помещение и кладовая общей S=15,22м2 Фундамент - свайно-винтовой, 34 сваи диаметром 89мм, длиной 3м с двумя лопастями. Силовой каркас - доска камерной сушки 50x150мм. Крыша вальмовая, на кровле металлочерепица монтеррей цвет 7024 серый графит, с дополнительной подкровельной гидроизоляцией. Коньки полукруглые с конусными заглушками Утепление стен перекрёстное 200мм, утепление пола и потолка перекрёстное 250мм, использовался утеплитель Knauf Insulation ПРОФ TS 034 Аквастатик (плита) Внутри утеплитель закрыли пароизоляцией СиЖ, толщина плёнки 200 микрон, стыки проклеили скотчем DELTA-MULTI-BAND-M60 На пол в доме постелили ЦСП толщиной 20мм под полусухую стяжку Фасад обшили фасадными панелями Дёке. Скомбинировали 2 цвета. По цоколю панели серии Slate цвет Валь-гардена. Основной фасад серия Stein цвет молочный Установили пластиковые окна: двухкамерный стеклопакет, пятикамерный профиль, с проклейкой монтажной пены пароизоляцией и ветрозащитой. Подшили все карнизы и потолок на террасе виниловым софитом Грандлайн серого цвета Установили плоскоовальные снегозадержатели по всему периметру кровли дома и террасы Установили ПВХ водосточную систему Грандлайн белого цвета на кровлю дома и террасы На террасу постелили террасную доску из лиственницы
Дом построили на фундаменте УШП (утеплённая шведская плита) - Силовой каркас - доска камерной сушки 50x200мм. - Крыша шатровая, металлочерепица Viking цвет 7024 серый графит покрытие - Дальнейшие работы по утеплению и отделке дома заказчик будет выполнять самостоятельно.
ПЛАНИРОВКА: Дом имеет кухню- гостиную, две спальни и санузел ФУНДАМЕНТ: Из-за большого перепада высот уровня земли применили свайно-винтовой фундамент. По результатам исследования грунтов подобрали сваи диаметром 89мм толщиной стенки 6мм, длиной от 3.5 до 4.0м с двумя лопастями. Снизу пол зашили металлической оцинкованной сеткой от грызунов. Диаметр проволоки 0.6мм, ячея 6мм. ДЕРЕВЯННЫЙ КАРКАС : Каркас стен, пола и потолка сделали из пиломатериала камерной сушки. Стены и потолок: доска 50х150мм, пол доска 50х200мм УТЕПЛЕНИЕ : Стены утеплили толщиной 150мм, пол и потолок 200мм. Утеплитель применили базальтовый эковер Лайт, плотность 35кг/м3. Внутри утеплитель закрыли пароизоляцией изоспан В, снаружи ветрозащитой изоспан А, сделали вент зазор. ФАСАД : Внешнюю отделку сделали металлосайдингом под брус, цвет орех 3д. Карнизы подшили виниловым сайдингом белого цвета. КРОВЛЯ : На кровлю постелили металлочерепицу монтеррей цвет 8017 шоколадно-коричневый, толщина 0.45мм ОКНА: Пластиковые с поворотно- откидными створками, двухкамерными стеклопакетами 120см х 130см - 3шт (кухня-гостиная, спальня, спальня) 60см х 130см - 1шт (кухня- гостиная) 50см х 50см - 1шт (санузел) ВХОДНАЯ ДВЕРЬ: Входная дверь металлическая с терморазрывом ВНУТРЕННЯЯ ОТДЕЛКА: Отделка стен МДФ панелями вертикально. Цвет натуральный ДУБ. На пол постелили берёзовую фанеру ЭЛЕКТРИКА: Скрытая разводка электрики в ПВХ гофре. Срок строительства 3 недели.
Построили каркасный дом 4.5*5,5м СНТ Чайка Работы: 1. Собрали каркасные стены, лаги пола, потолка, стропила из доски 150х50мм. 2. Внешнюю отделку выполнили виниловым сайдингом цвет крем-брюле. Предварительно на стены смонтировали ветрозащиту Изоспан А и контрбрусок из доски 100х25мм. 3. Кровлю покрыли оцинкованным профнастилом Н20. 4. Дом построили на фундаменте из винтовых свай
Построили каркасный дачный домик 1. Размер домика 3м х4м 2. Каркас из доски 50х100мм камерной сушки 3. Утепление стен, пола и потолка базальтовым утеплителем Эковер Лайт, толщина 100мм. Пароизоляция Изоспан В. Ветрозащита Изоспан А 4. Внешняя отделка профнастилом С15 под дерево с покрытием Printech, цвет Золотой орех 3Д. На кровле окрашенный профнастил С20. 5. Внутренняя отделка OSB плитой толщина 9мм 6. Установили пластиковое окно 80см х 80см с однокамерным стеклопакетом, с поворотно-откидной створкой и москитной сеткой. 7. Установили входную металлическую дверь 8. В качестве фундамента использовали 8 ФБС блоков. Домик построили за 3 дня
Оставить заявку на предварительный расчёт стоимости каркасного дома